24645 Saber Court, Wildomar CA 92595 | $2,999
Listing provided courtesy of William Yanez-Manecke of Tricon Residential. Last updated . Listing information © 2025 .
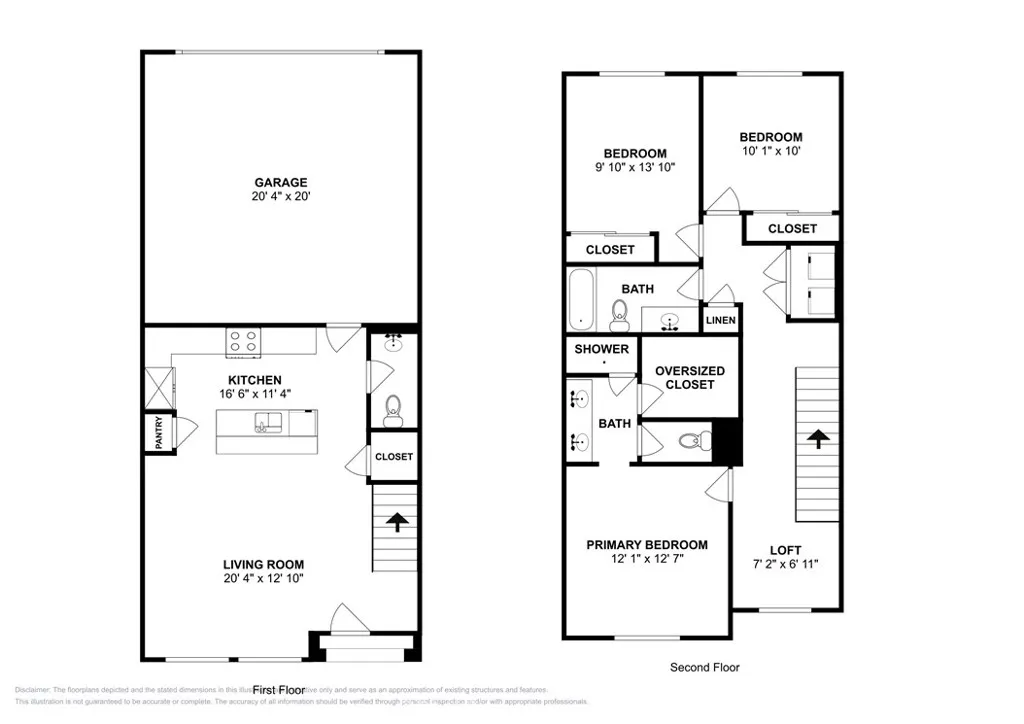
This home is professionally managed by Tricon Residential, dedicated to creating exceptional rental experiences. Featuring three bedrooms, two and one half bathrooms, and approximately 1,361 square feet, this townhome offers a high standard of rental living, supported by a team that puts residents first. Tricon Wildomar is a beautiful Spanish-inspired gated community centrally located just one hour from San Diego and Orange County. Enjoy virtually maintenance-free living with the conveniences of solar and smart home technology including automatic thermostat control and keyless front door entry all designed to provide an exceptional living experience. Every home includes an open-concept design, gourmet kitchens with quartz countertops and stainless steel appliances. Enjoy well-maintained amenities including a sparking pool with wifi, tot lot/playground, dog park, fitness center and clubhouse with rentable event space.






































