4254 Canoga, Woodland Hills CA 91364 | $325,000
Listing provided courtesy of Behnam Ansari of Gold Star Realty. Last updated . Listing information © 2025 .
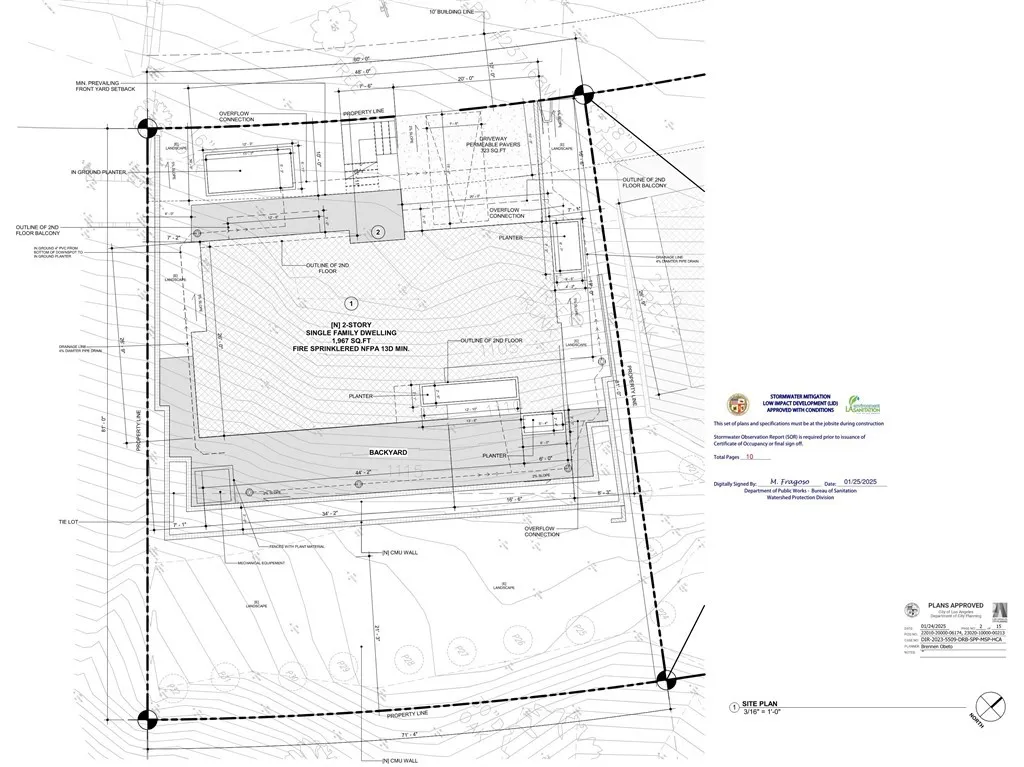
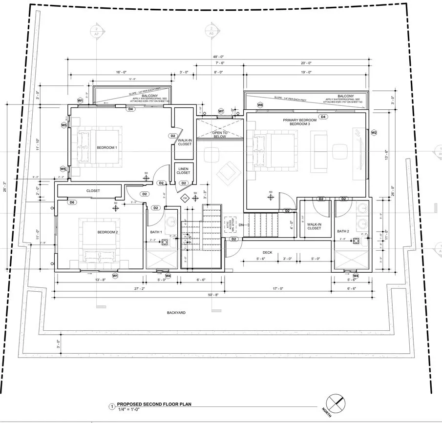
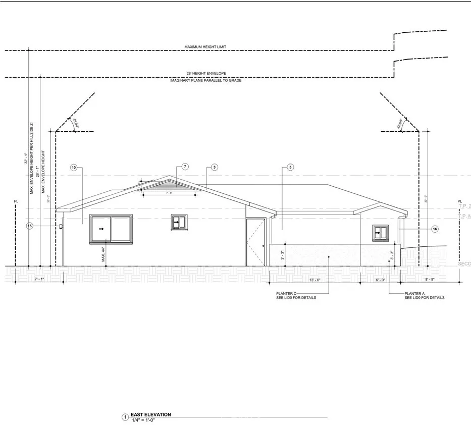
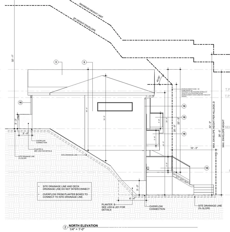
Vacant Lot with RTI Plans 4254 Canoga Avenue (Lot No. 5257, Cut 1 & 2) Excellent opportunity to build a beautifully designed single-family residence in a highly desirable Woodland Hills neighborhood. The property comes RTI (Ready-to-Issue) with a full set of approved plans for a stylish home featuring approximately 2,225 sq. ft. of building area (1,913 sq. ft. RFA), including an attached garage. The lot is approximately 5,317 sq. ft. (per tax assessor) and is situated on an uphill site no costly caisson work required. All approvals have been secured through the Mulholland Corridor Design Review Board, and the architectural, structural, grading, and landscape plans are included. Simply pull the permit and start construction immediately. This is a great opportunity to develop in a prime location surrounded by quality homes. The proposed design blends modern style with the natural hillside setting, creating a perfect balance of comfort and elegance. Note: Buyer to verify all information independently. Also, see listings for 4256 and 4260 Canoga Avenue for nearby opportunities.

































