401 Cherry, Monrovia CA 91016 | $1,249,000
Listing provided courtesy of Ka Ho Hui of TOP PRODUCERS REALTY PARTNERS. Last updated . Listing information © 2025 .
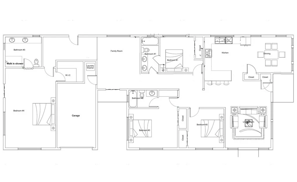
Welcome to this beautifully remodeled home in the heart of Monrovia! This exceptional 4-bedroom, 3-bathroom residence blends modern style with everyday comfort, offering 2,166 sq ft of living space on a generous 6,532 sq ft lot in a highly rated school district. The home features two separate entrance doors, making it easy to convert into two units if desired. Step into the stunning new kitchen, complete with brand-new appliances, fresh cabinetry, and a spacious, open layout perfect for both daily living and entertaining. The luxuriously upgraded bathrooms showcase elegant marble-look tile, walk-in showers, and a brand-new soaking tub. Enjoy the expansive, gated front and back yards, featuring multiple fruit trees and endless potential for gardening, outdoor living, or future enhancements. The entire homeinside and outhas been freshly painted for a truly move-in-ready experience. Ideally located near schools, supermarkets, banks, and restaurants, with quick access to the 210 Freeway, this home offers convenience, comfort, and exceptional value. Dont miss the opportunity to make this stunning Monrovia property yours!
























































