7924 Bright Avenue, Whittier CA 90602 | $799,000
Listing provided courtesy of Phyllis Cheng of Titan One Real Estate. Last updated . Listing information © 2025 .
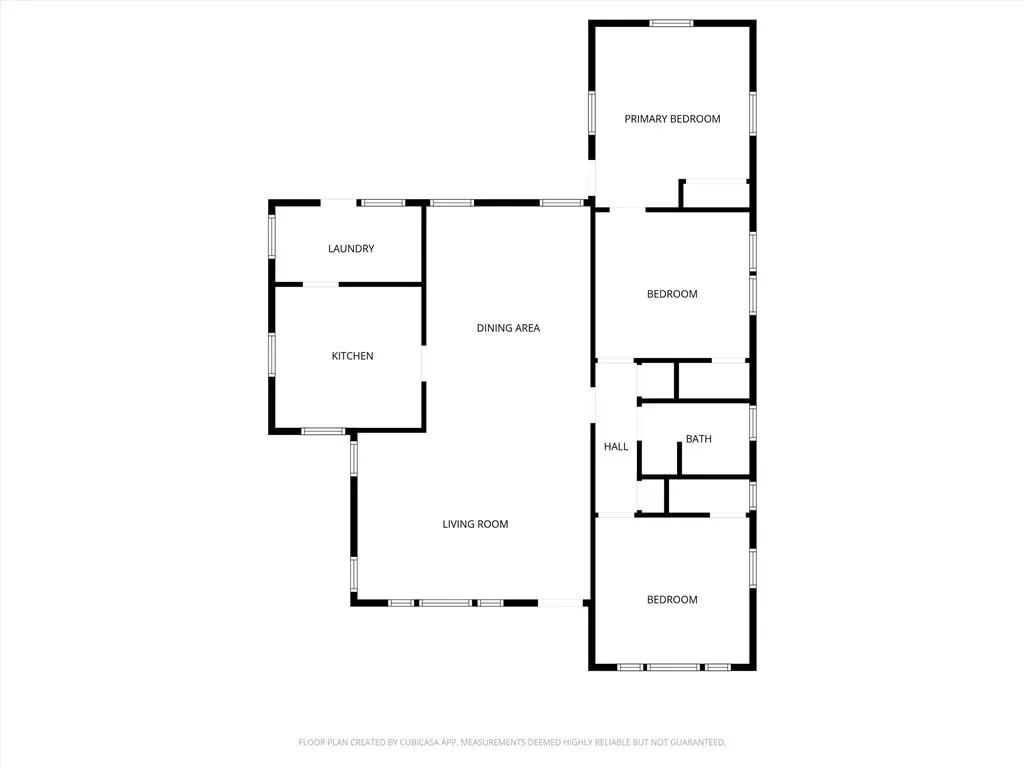
R3 zoning. This Craftsman-style home sits in the heart of Uptown Whittierjust minutes from local colleges, shops, cafes, parks, and farmers market. The white rose-lined front yard, classic picket fence, and elevated lawn create a timeless first impression, while the spacious covered porch offers a cozy place to relax and enjoy the neighborhoods charm. The living room features laminate flooring, recessed lighting, and large windows that bring in abundant natural light. It flows into a tiled dining area with backyard views and plenty of space for gatherings. The kitchen offers tiled countertops, ample cabinetry, and convenient access to the laundry area. All three bedrooms include wood flooring, ceiling fans, and built-in closets. The full bathroom features a tiled tub/shower combo. Recent updates include fresh interior paint, large window casings, an upgraded A/C system, newer water heater, and sprinkler systems. The backyard is ideal for outdoor living, with a pergola-covered patio, mature trees, and open space for gardening, recreation, or future landscaping. A detached rear structure offers additional storage or creative use. Rear alley access and an extra parking spot beside the garage provide added convenience. Zoned R3 (buyer to verify), the lot offers excellent potential for an ADU, additional units, or long-term investment. Combining original charm, thoughtful upgrades, and future possibilities, this home is a rare opportunity in one of Whittiers most desirable neighborhoods.











































