996 1st, Chico CA 95926 | $549,000
Listing provided courtesy of Tara Anderson of Ballou Company. Last updated . Listing information © 2025 .
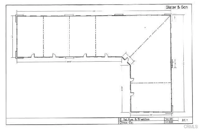
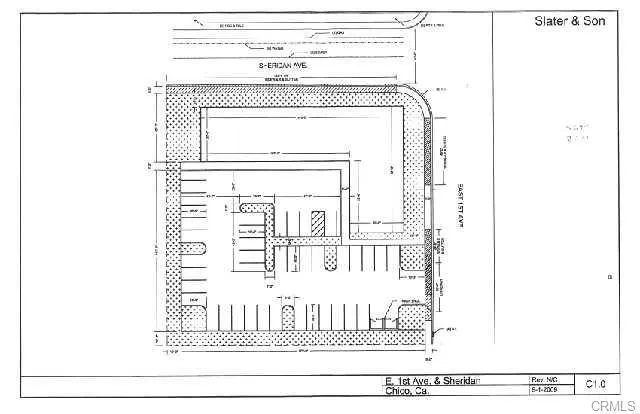
Arguably one of the best corner lots in Chico for traffic count and visibility! Near the intersection of E 1st Avenue and Hwy 99. Power onsite and city services on street. The property is zoned OR (Office Residential) and is primarily intended to implement the Office Mixed Use land use designation. Permitted uses can include: medical offices, churches, fitness clubs, museums, schools, assisted living, live/work, convalescent care homes, drug stores/pharmacies, grocery stores, restaurants, banks, bed and breakfast, day care facilities, financial services, community gardens, dental offices, medical services, and more. Photos include a floor plan concept similar to the location at 1350 E 9th Street in Chico, which can be for single tenant or multi-tenant. With a Use Permit, you may build an apartment complex and photos have been included for that concept as well.


























