1420 Euclid Avenue, Ontario CA 91762 | $1,499,000
Listing provided courtesy of Franc Huang of RE/MAX Fine Homes. Last updated . Listing information © 2025 .
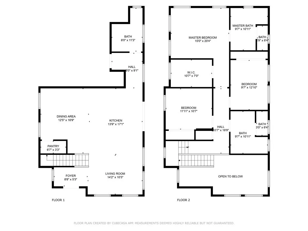
Two Single-Family Residences on One Lotan exceptional opportunity for multi-generational living or investment. Situated on a generous 8,940 sq ft lot, this unique property features two fully detached homes. The front residence features approximately 2,045 sq ft of living space with 3 upstairs bedrooms and 2.5 bathrooms. Recently vacated by the previous tenant, the home has been cleaned thoroughly, but the carpet needs to be replaced and some cosmetic upgrades may be needed. The rear residence spans approximately 1,935 sq ft and features 4 bedrooms, including one conveniently located on the main level, and 3 bathrooms. Recently remodeled, this home showcases fresh interior paint and wood-style vinyl flooring throughout, offering a modern and move-in-ready appeal. Conveniently located with easy access to the 60 Freeway, Ontario International Airport, Ontario Mills, shopping, dining, and other key destinations, this property presents a rare and versatile opportunity in a desirable location.























































