1559 Mustang Avenue, Orange CA 92869 | $2,350,000
Listing provided courtesy of John Katnik of Katnik Brothers R.E. Services. Last updated . Listing information © 2025 .
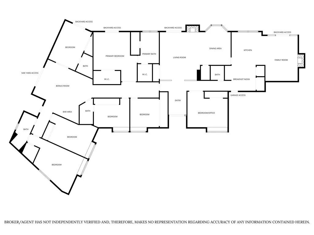
Welcome to 1559 N. Mustang Avenue, a Dream Lot/Location Within the Sought-After Orange Park Acres Community. This Sprawling Single Level Home Sits on an Oversized Lot (Nearly Acre) Featuring Seven Bedrooms, Four and a Half Bathrooms, Bonus Room, RV/Boat Parking, Newer Carpet, Newer Interior/Exterior Paint, and a Resort-Style Backyard. Upon Entry, the Open-Concept Living and Dining Room Feature a Soaring Ceiling, Cozy Fireplace, Wet Bar, and Backyard Access. The Kitchen Provides Ample Cabinet Space, Upgraded Appliances, Built-In Fridge, Peninsula with Seating, Backyard Views, Breakfast Nook, and Built-In Desk. The Family Room Boasts a Coffered Ceiling, Built-Ins, Fireplace, and Backyard Access. The Spacious Primary Suite Features a Coffered Ceiling, Backyard Access, and Ensuite Bath with Dual Vanities, Makeup Vanity, Walk-In Shower, Separate Tub, and Walk-In Closet. The Expansive Backyard Includes a Pool, Spa, Fireplace, Built-In BBQ, Firepit, Pergola, Large Grass Area, Goat Pen, and Multiple Seating Areas. Direct Access Three Car Garage. Easy Access to Irvine Park/Santiago Oaks Park/Peters Canyon Regional Park. Minutes from the 5/55/22 Freeways, 241/261 Toll Roads, and Multiple Nearby Sought After Schools: Chapman Hills Elementary, Linda Vista Elementary, Salem, Oakridge, and Orange Lutheran High. No HOA and No Mello-Roos! 1559 N. Mustang Avenue is a Must See Home in Orange Park Acres!










































