201 Olive Street, Ventura CA 93001 | $899,000
Listing provided courtesy of Heather Turner of Ventura Real Estate Company. Last updated . Listing information © 2025 .
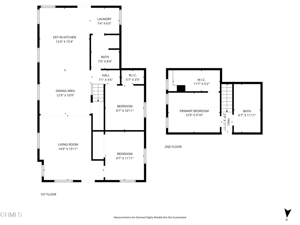
Built in 1905 and thoughtfully remodeled in 2024, this historic coastal home blends classic Ventura charm with modern upgrades--and has never been lived in since the remodel. The closest single-family home currently on the market to C- Street, this property offers an unbeatable location just steps from the Amtrak Station and Fairgrounds, making it ideal for commuters to Santa Barbara and Ojai.Situated near Tony's Pizza, Topa Topa Brewing Co., the iconic Ventura Pier, and the Ventura Promenade, this home places you at the center of Ventura's vibrant coastal lifestyle. Perfect for surfers--grab your board and hit the waves in minutes!The home is truly turn-key and move-in ready--just bring your toothbrush. The fully remodeled interior features two downstairs bedrooms and a full bath, with an upstairs third bedroom and additional bathroom, offering privacy and flexibility. The kitchen is beautifully upgraded with quartz countertops, a 6-burner stove, dishwasher, and modern finishes throughout. Additional highlights include interior washer and dryer, double-pane windows, and central air conditioning for year-round comfort.Outside, privacy fencing enhances both security and seclusion, creating an ideal space to relax or entertain. Offered fully furnished (not staged), this home also includes an oversized parking space suitable for a possible RV or other recreational toys, a rare and valuable feature in this prime coastal location. Ideal as a primary residence, weekend getaway, or turnkey investment, this property is a rare opportunity to own a move-in-ready coastal home with mod





















































