3635 Woodruff, Long Beach CA 90808 | $1,050,000
Listing provided courtesy of Shannon Paul of Equity Union. Last updated . Listing information © 2025 .
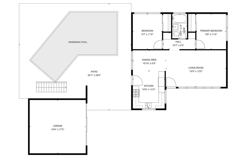
MID-CENTURY DESIGN + ADU | POOL & OUTDOOR LIVING | DESIRABLE LONG BEACH NEIGHBORHOOD This home offers approximately 1,377 square feet of interior living space on a 5,583-square-foot lot, thoughtfully oriented to embrace Southern Californias indooroutdoor lifestyle. Two patio areas, a swimming pool, and a fire pit create inviting spaces for everyday living and relaxed gatherings, while the homes layout allows interior spaces to open naturally toward the outdoor setting. A rear ADU situated above the garage adds valuable flexibility for extended living arrangements, a private guest space, or supplemental rental income. Centrally positioned within Long Beach, the property enjoys close proximity to parks, dining, and local attractions, along with convenient access to the 405, 710, 605, and 22 freeways. California State University Long Beach and several major healthcare centers are just minutes away.






































































