11411 Faldo Street, Beaumont CA 92223 | $617,500
Listing provided courtesy of Shawn Black of Meritage Homes of California. Last updated . Listing information © 2025 .
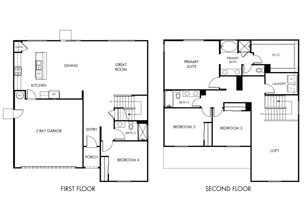
Brand new, energy-efficient home available by Apr 2026! Divine Package. Discover the perfect blend of comfort and functionality in this thoughtfully designed 4-bedroom home. With an open-concept layout and a versatile loft space, this home offers plenty of room for entertaining, and personal retreats. Models open March 21, 2026! Priced from the mid $500,000s, our energy-efficient, move-in ready homes include a washer, dryer, fridge, and whole home blinds, plus they can be closing-ready in 60 days or lessguaranteed. Have it all: Life in this amenity-rich neighborhood is complete with multiple pools, a fitness center, parks, dog parks and more, all with easy access to San Bernardino, Riverside, and Palm Springs. Each of our homes is built with innovative, energy-efficient features designed to help you enjoy more savings, better health, real comfort and peace of mind.





















