3609 Walnut, Manhattan Beach CA 90266 | $3,299,000
Listing provided courtesy of Tad Thormodsgaard of eXp Realty of California Inc. Last updated . Listing information © 2025 .
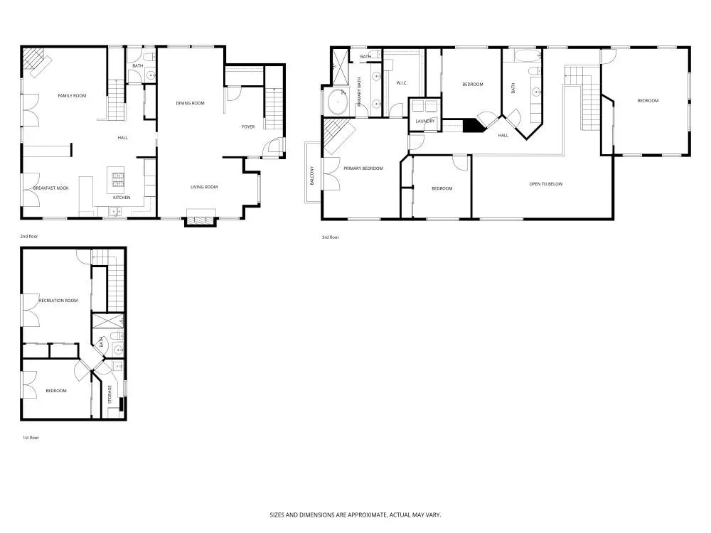
Welcome to 3609 Walnut Avenue, a beautifully situated home in the highly sought-after Manhattan Beach Tree section where coastal living meets timeless nature and charm. Perched high in the trees with beautiful west facing sunset and horizon views. This 3780 square foot home built by John Wisdom with 5 bedrooms and 4 bathrooms offers an exceptional opportunity to enjoy one of the most desirable beach communities in Southern California. This residence features a bright and airy layout with 28' ceilings filled with natural light, complemented by generous living spaces designed for both relaxation and entertaining. The home showcases a seamless indoor-outdoor flow, perfect for enjoying the year-round sunshine and ocean breeze. A well-appointed kitchen opens to inviting living and dining areas, while the spacious bedrooms provide comfort and privacy for family and guests alike. There is a downstairs bonus area with an adjoining bedroom and bathroom that can be used in a variety of ways. There are 4 large bedrooms upstairs including the primary suite with a large walk in closet, a large soaking tub and shower and a wood burning fireplace that adds to the beauty of this room perched up in the trees. The beach and the trees- this house brings the best together like peace and harmony. Step outside to a private outdoor space ideal for hosting, unwinding, or simply soaking in the coastal lifestyle. Whether its morning coffee on the patio or evenings with friends, the setting offers both tranquility and versatility. The large green backyard with mature trees is perfect for outdoor fami






















































































