9620 Tenaya Way, Kelseyville CA 95451 | $340,000
Listing provided courtesy of Hazel Wayman of RE/MAX Gold Lake County. Last updated . Listing information © 2025 .
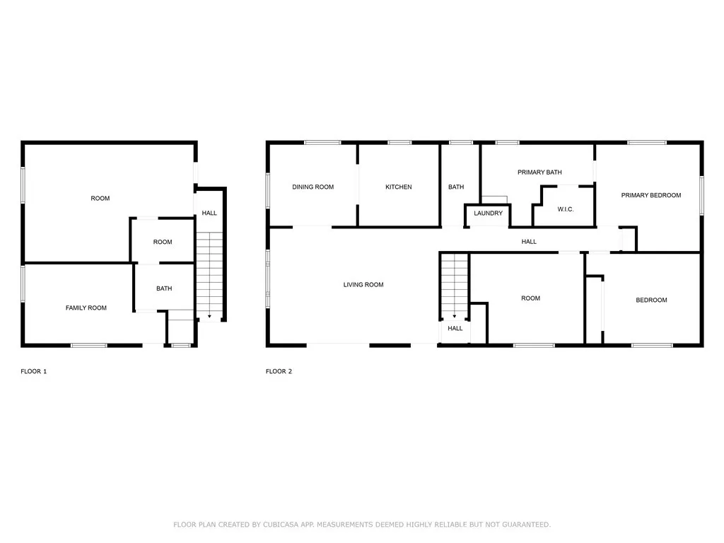
Panoramic views of beautiful lake county. Best lake views, 4 bedrooms, 3 baths. Home has a fenced area, two large driveways, corner lot. Two decks to enjoy watching the sunsets. Fresh Paint on both floors, two separate entrances. Solar with back up batteries. "Experience breathtaking panoramic views of Lake County in this stunning home, perfectly situated on a spacious corner lot. Designed for comfort and convenience, this property features 4 bedrooms, 3 baths, and two separate entrances, ideal for extended living or guests. Freshly painted inside and out, the home boasts two large driveways, a fenced area for added privacy, and solar panels with backup batteries to ensure sustainable living. Relax and entertain on the two expansive decks, the perfect vantage points for unforgettable sunsets over the lake. With its thoughtfully designed layout and abundance of natural beauty, this home is an oasis of tranquility and style."




















































