19829 Adirondack, Riverside CA 92508 | $825,000
Listing provided courtesy of James Cottrell of eXp Realty of California Inc.. Last updated . Listing information © 2025 .
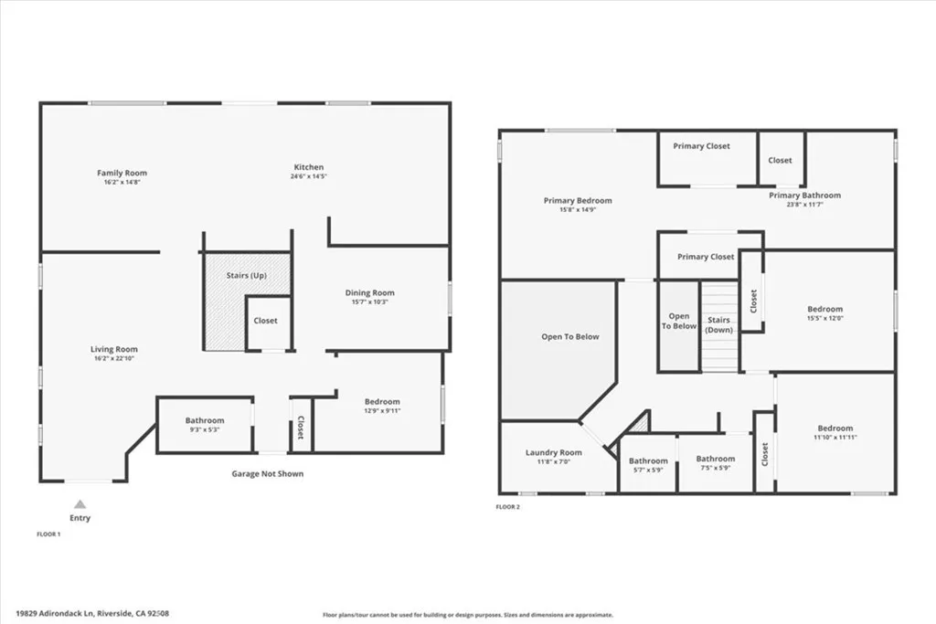
Is there a 4-bed home in Riverside with a pool, 3-car garage, and no HOA? In the heart of Orangecrest, this thoughtfully upgraded residence offers over 2,600 square feet of elegant living on a quiet, tree-lined street in the 92508 zip. A custom pebble-tech pool, designer kitchen, and flexible layout create a refined blend of sophistication and everyday comfort. Step inside to find wide-plank luxury vinyl flooring and detailed crown moulding throughout. The spacious kitchen features white shaker cabinets, quartz countertops, a charcoal-toned island, and a striking tile accent wall behind the gas range and stainless chimney hood. A large stainless farmhouse sink sits beneath a picture window with views of the private backyard. Enjoy open flow between the kitchen, dining, family, and living roomsperfect for both daily living and entertaining. The main level includes a full bedroom (currently used as an office) and bath, ideal for guests or multi-generational living. Upstairs, youll find three additional bedrooms, including a generous primary suite with dual sinks, his-and-hers walk-in closets, a soaking jacuzzi tub, and a separate shower. Out back, unwind in your own resort-style oasis: a custom in-ground pebble-tech pool with raised spa, stacked-stone spillway, and mature tropical landscaping including palms and birds of paradise. The backyard also features an extended concrete patio, full vinyl fencing, a retaining wall, and an irrigation system for low-maintenance enjoyment. Additional upgrades include an upgraded 17 SEER HVAC system with heat pump, new returns throughout t













































