32224 Emerald, Lucerne Valley CA 92356 | $349,900
Listing provided courtesy of Dino De Fazio of Artisan Real Estate. Last updated . Listing information © 2025 .
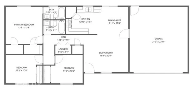
New construction 3 bedroom 2 bathroom 500 square foot garage large kitchen with walk in pantry indoor laundry and more.





























